伟大的灵魂
为信念燃烧的生命
总是彼此牵引着
总是互相照亮着
如同恒星间的引力永不孤独
——致Mr Yan
牛栏 NEW LAND是一家牛肉.啤酒工厂集合饮食店,位于苏州十全街中核526产业园内的一处旧厂房,做牛肉初衷的时候没有想过拿到这么大的店,还是因为看中了这个建筑内部的感觉,于是我们重新去定义和计算了运营成本。
01 燃烧
原本的建筑外立面为白墙,从整理风格走向和整体预算出发,我们用了红砖去覆盖,它被另一座建筑遮挡,慢慢走近他,才得以见他的全貌。随着动态的火焰,调动着食客的情绪。
脚手架搭建的广告区域,随时可以更换的活动主题,给未来的运营者留足空间。
入口处缓冲区,设置了现场浇筑的用来等位的水泥坐凳,增加空间开合的张力,两边用铁网隔离着。内退的出来的空间。
等位休憩之余,拿起操控器,沙池的的挖挖机就开始忙碌的工作着,除了可以为前往的孩子们留出来自己的玩乐空间,也是大孩子们可以绽放天性的区域。
巨大的纸牛入口作一些遮挡,也是点题的艺术性装置。
02 凝视
10米高的空间里,保留了空间的原始性,裸露的混凝土,我们设置的空间的巨型装置,可以理解为牛骨架,它贯穿的沙池的区域,在空间里,在不同的角度,我们凝视着它。
巨大的工业吊扇,让我们聚焦于当下和此地,探索存在和不被破坏的感知,模糊空间的边界。
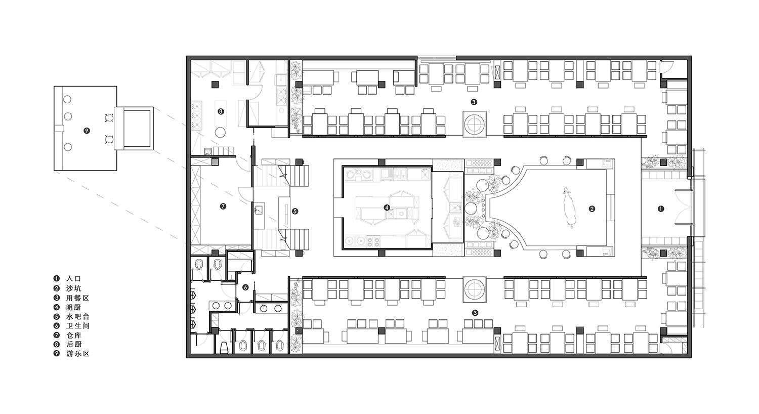
整个内部空间是对称布局,中间用沙池和明厨区隔开,用餐区放在两侧,用了大量的空间去为空间减燥,动线也使得用餐变得相对私密和放松。
与过道的隔断用了很粗糙的水洗石墙面,和空间相融合。
03 秩序
在规律的对称布局空间里,时间在环绕的踱步和停留的用餐过程中,仿佛就消失了,或者变得漫长,像停留记忆里,变得抽象了起来,交织在这食物的香气里。
构建的秩序,在人和空间中相互交织。
清晰可见的明档厨房,可以让用餐者更清晰的了解牛肉的切割过程,像一场极致的演出,食客华丽的现身,参与到这场演出中,也享受着这场演出带来的愉悦。
空间中酿酒罐虽然是废弃的装置,但是牛栏的精酿啤酒有很多款的自酿,我们将它置于空间中,尽管它在空间里不承载实质性用途,却是唤起无意识的感知,也将餐食和空间产生连续性。
每个状态,包含着无数微妙的记忆存在感。
04 故事
空间基底是旧厂房的筋骨,裸露的水泥柱带着岁月斑驳,管道如沉默的脉络,静静盘踞。我们以敬畏之心保留建筑原始肌理,让工业基因自然生长。
这些粗犷线条,是时光打磨的刻痕,它们曾见证机器轰鸣,如今成为烟火相聚的底色,像一位沉默的老者,将往昔故事悄然晕染在空间里,与当下食客的欢笑、交谈形成奇妙的时空对话。
混凝土墙面的涂鸦,是我们的一些小心思,他们有着具体人物故事,只在酒中作乐的时候去附耳讲的“秘密”。
偶尔从天窗倾泻而下的光芒,像一股神秘的力量,将人和空间闹闹的绑在一起。
05 生命
开放式厨房的圆形窗洞,是空间里的“时光透镜”。透过它,食客能窥见烟火缭绕的烹饪日常:师傅利落切肉,肉片薄厚间藏着功夫;食材在汤锅中沉浮,咕嘟咕嘟的冒泡声,是食物苏醒的絮语 。
从备制到上桌,食物的故事借由窗洞清晰铺展,让吃不再只是果腹,而是一场参与感满满的烟火探秘,把烹饪的诗意与烟火气,传递给每一位驻足者。
空间的尽头是教授架搭建的巨型场景,发光的球体穿插在其中,像小时候看到的天上月亮,好像我们走月亮就跟着我们走。
沉浸式拥抱这沸腾的、充满故事的日常 ,在蒸汽升腾里,续写属于自己的烟火长诗。
06 柔性光语
它们相互交织,构建出“刚柔对话”的场域——金属的冷峻框架,为光的蔓延划定轨迹;光的暖融包裹,给钢构赋予情感,让工业不再是单调的机械符号,而是成为能呼吸、有故事的空间容器。
脚手架的直线条,是理性与秩序的表达,呼应工业风基因;而球形灯的柔和光晕,是感性与温度的注入,如同烟火气的具象化。
每一束光透过金属缝隙洒落,每一寸钢构因光而生动,食客穿梭其间,既触碰工业的粗粝质感,又被柔性光晕温柔环抱,于矛盾共生中,感知工业风与烟火气交融的独特美学,让就餐体验从味觉延伸至空间的精神共鸣 。
∇ 轴测图
∇ 平面图
项目信息
项目名称 – 牛栏 • NEW LAND
项目地址 – 苏州市十全街中核526产业园
项目面积 – 560㎡
设计公司 – 苏州所乂设计
设计师 – 张旖 (旖子)
设计团队-周如珩 周申颖
施工团队- 仁府精造
开始时间 – 2025.02
完工时间 – 2025.05
摄影团队 – 马利仁
高清图库下载
相关文章推荐





















































评论(0)