壹· 临海
Approach the Shore
——站在岸边,海风迎面,城市与码头的界限渐渐模糊,木构与石材构筑出一个既熟悉又陌生的起点。
场地现状
Current State of the Site
项目位于上海闵行春申路,基地原为街区型商业空间一隅,面朝开放街区,交通便利,周边为成熟居住社区。原有建筑层高较高,进深充裕,具备良好的更新基础。作为一家主打鲜活现烹的社区型海鲜大排档,新空间需回应高频人流与复杂功能的复合需求,同时以当代结构语言重塑“大排档”这一熟悉而带有烟火气的生活场景。
∇ 建筑位置,architecture position©马利仁
项目原始空间规整,形式常规,缺乏标识性。如何在有限结构内挖掘场所感,并兼顾运营效率与情绪氛围的建立,是设计所面对的首要挑战。
设计定位 Design Positioning
“入海码头”取意于江河入海的集散之地,是人、物与情绪交汇的临界场所。设计不再以符号化方式再现“海鲜”“码头”意象,而是提取其空间精神特征,以“开放、围合、聚集、流动”为组织逻辑,在有限空间中搭建一个具有木构节奏感与石材肌理质感的都市渔港。设计试图在城市街区中构建一个拥有“靠岸感”的日常居所,使海鲜餐饮回归食物本身的新鲜与社交本能的温度。在材质、尺度、光线、界面等一系列构造策略中,设计者强调场所气质的生成,亦回应城市生活中逐渐消失的“公共性食空间”。
∇ 餐厅外观,Exterior of the restaurant© 马利仁
设计策略 Design Strategy
本项目以“结构—材料—气氛”的三重构成方式组织内部空间。设计延续“大排档”原有的开放性与烟火感,同时通过木构的重组、灯光的铺排、动线的嵌套与封闭面的介入,实现功能效率与空间叙事的协同。整个室内空间被划分为三段式结构:靠街界面开放迎宾区,引入冰池展示与“渔获上岸”情境。中段为主餐厅区,以木构格架统领空间秩序,打造聚集氛围。最内侧则设立半围合包间,适应家庭聚会与社交需求。
贰· 入市
Into the Market
——穿行在烟火气中,海鲜展示区与蓝色鱼缸构成半开放的“渔市”现场,记忆中的大排档被重新演绎。
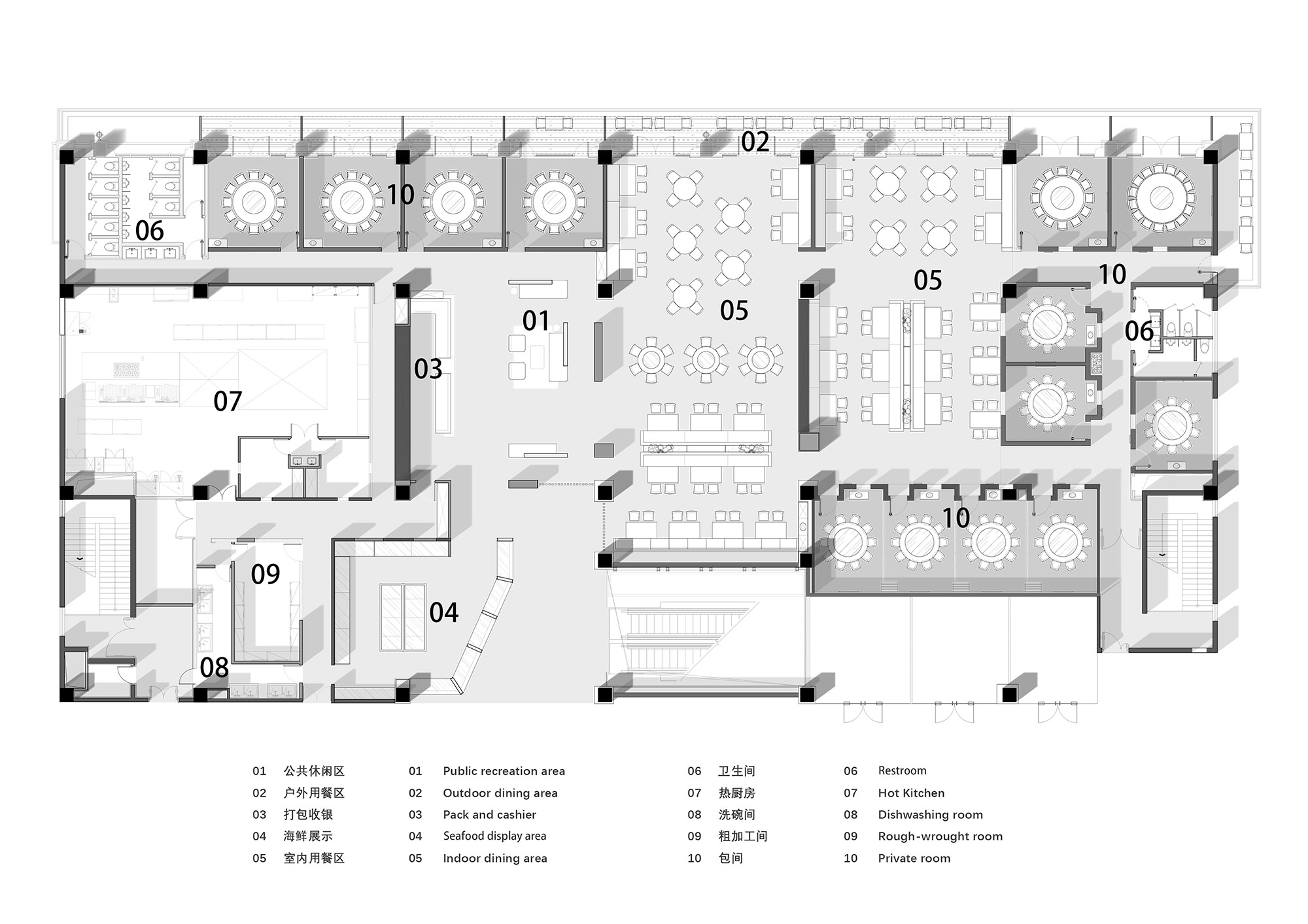
∇ 平面图,plans©平介设计
室内空间
Interior Spatial Narrative
∇ 轴测图,axonometric drawing©平介设计
相关文章推荐



















评论(0)