当空间学会了给生活让路,房子就真正变成了家
—— 之境内建筑
这是我们与业主一家的第二次筑家之旅,9年的时间,让我们与这个四口之家的羁绊早已超越了寻常的甲乙方。两次筑家间隔的岁月里,设计图纸与生活轨迹始终保持着微妙的共鸣,我们见证着他们对生活美学的觉醒,他们参与着我们对设计本质的思考。这种同频共振让重逢时的设计对话,如同老友重逢般自然流淌。
当毕业照拍摄那天,一家人的身影在新居中交织成温暖的光影,我们忽然懂得:所谓理想居所,不过是设计师将居住者的生命故事,编织成触手可及的温度。
01.重组与消融
在当代人居语境下,“自由”与“克制”的辩证关系始终是空间设计的核心命题。本案设计师以四川眉山300㎡的三层跃层为实验场域,突破传统设计范式束缚,通过解构重组与边界消融,构筑出一座兼具自然诗性与实用主义的城市度假空间,在方圆取舍间,完成自然质朴美学的当代表达。
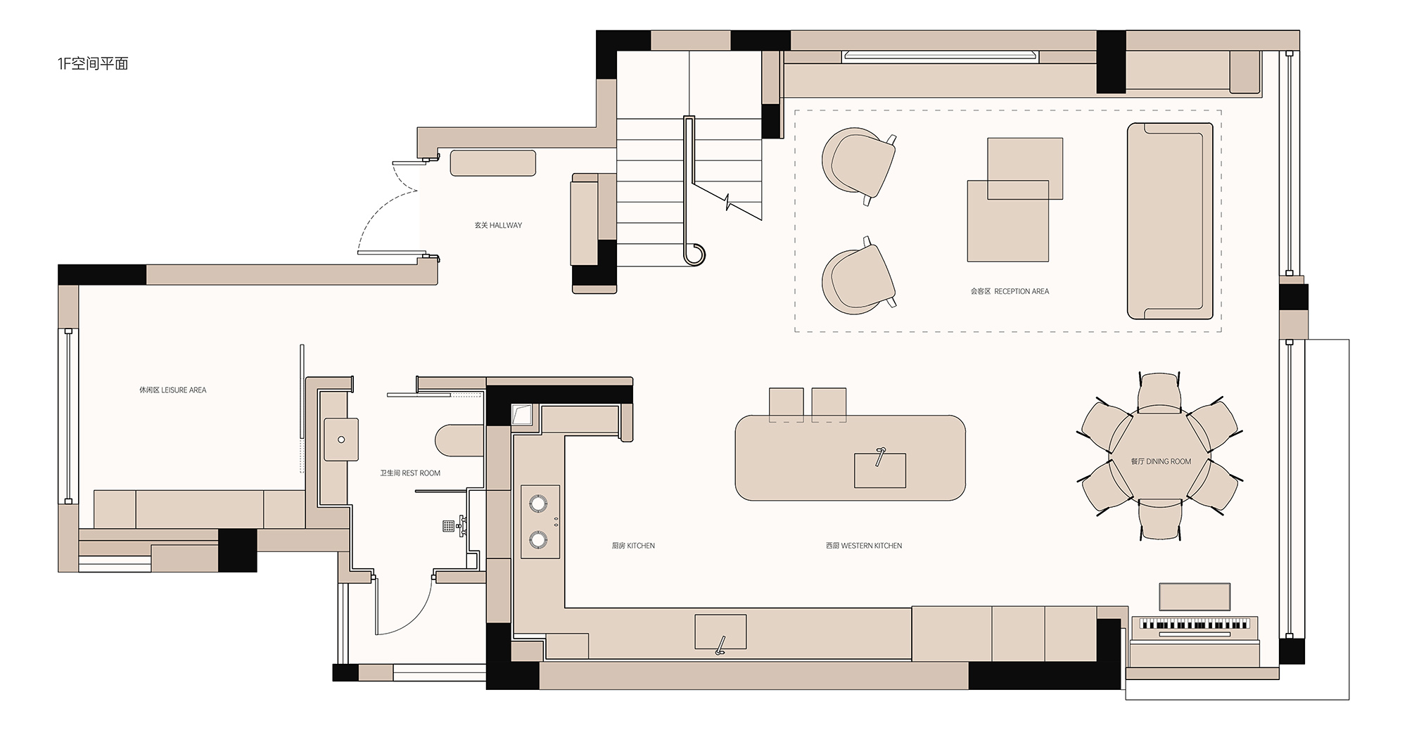
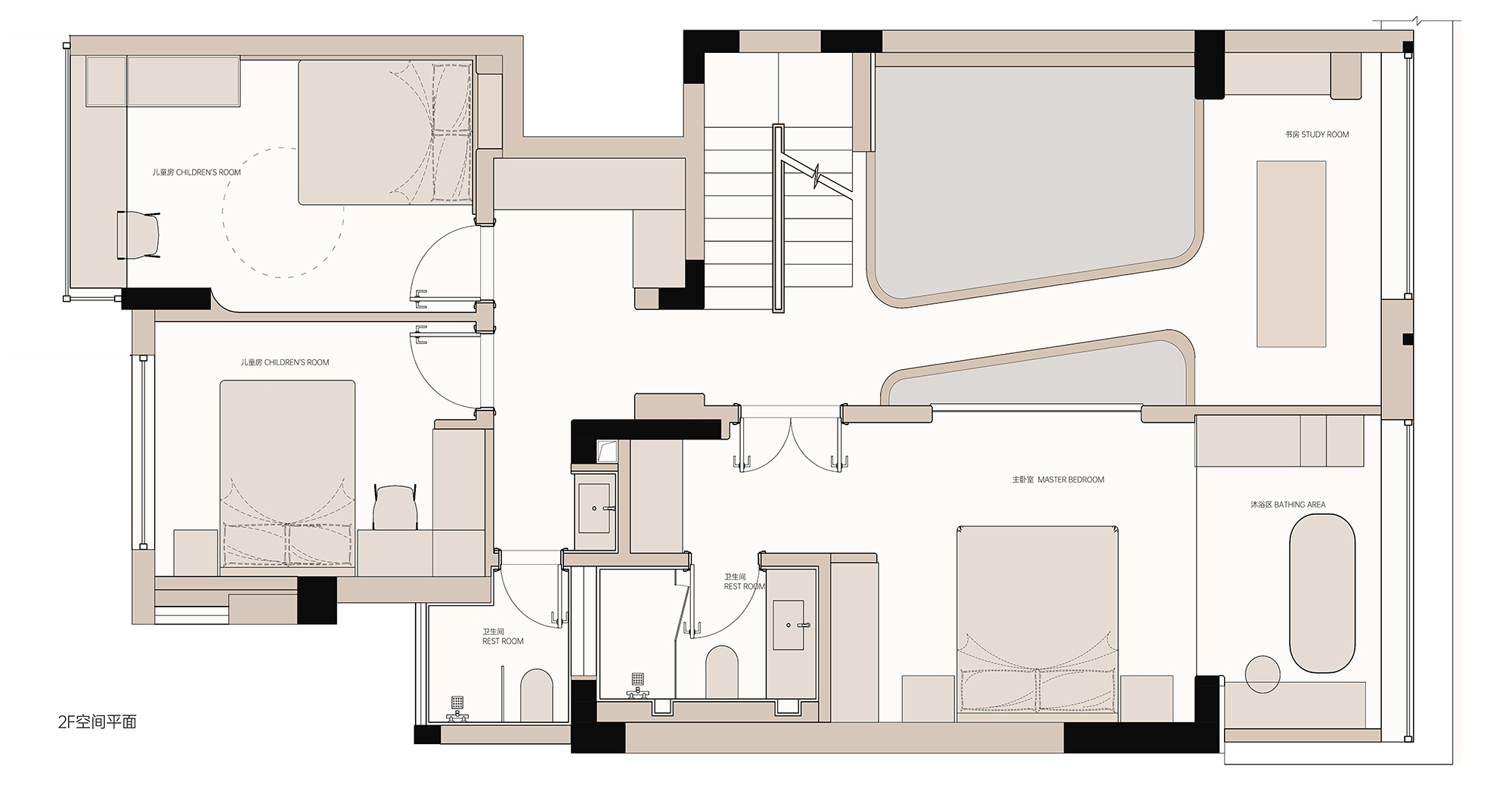
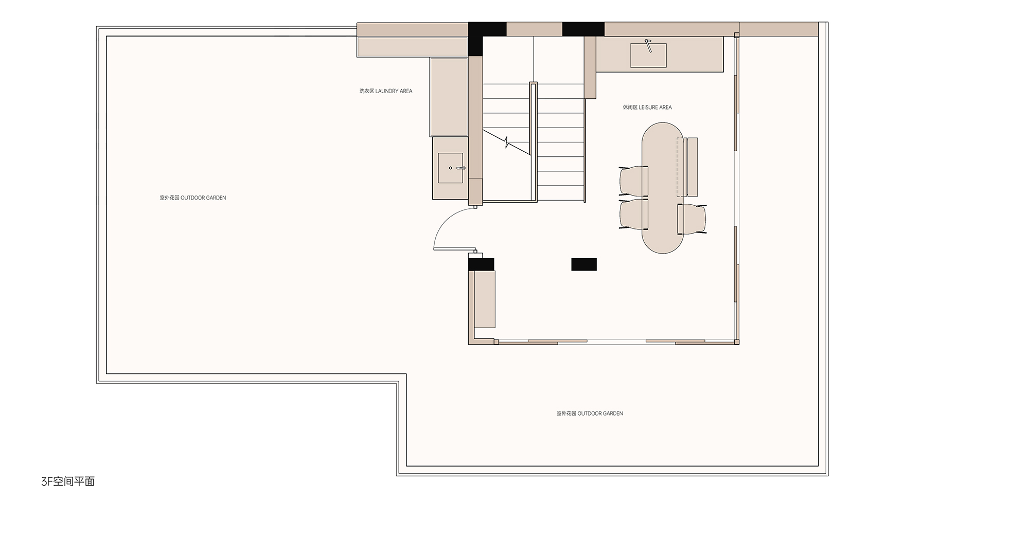
建筑原生的三层格局暗含挑战:单层面积局促导致空间功能割裂,空间个性趋于模糊,设计团队以“功能重叠”为设计思路,重构不同场域的空间秩序——将传统界限分明的客餐厅、中西厨转化为具有渗透性的复合空间系统,通过精细化的流线重组,实现功能模块既独立又交融的共生状态。这种去中心化的布局策略,不仅释放出超越物理面积的视觉张力,更赋予居住者自由定义场景的主动权。
∇ 平面图
空间戏剧性的高潮在二层挑空区完美绽放,设计师摒弃常规的回廊处理,以悬浮式空间廊桥串联开放式书房,构建出垂直纬度的叙事轴线,铁艺与原木的碰撞既延续美式乡村的质朴基因,又注入当代设计的轻盈质感,空间的仪式感与实用功能在此达成平衡。
相关文章推荐


















评论(0)