Dseesion工作室的设计师设计了位于莫斯科哈莫夫尼基的Roza Rossa豪华住宅中的218.5㎡的顶层公寓。这个为年轻人设计的室内装饰遵循了建筑的法则:所有的空间都组织成具有明确比例的体积序列。保持平衡是至关重要的:室内装饰不应过于突出或变成概念的展示——它的角色是为生活创造一个舒适的环境。
最初,顶层公寓计划有三间卧室,但在项目实施过程中,其中一间被改造成台球室,”设计师们说道。“厨房和餐厅被设计成一个统一的建筑体积,在这个空间中,岛台和餐桌不被视为家具,而是被视为空间的固定元素。它们的沉重感由灯具平衡,这些灯具不仅是光源,也是定义垂直节奏的空间构成的一部分。承重结构——支柱——有机地融入空间,作为玻璃展示柜,通过这些展示柜引入阳光。彩色玻璃在一天的不同时间给室内带来不同的光影效果,赋予其独特的性格。
空间的主要理念是利用天然材料的原始表现力:木材、石材、金属和玻璃展现自然纹理和自然的不均匀性。木材作为室内设计的基础,以温暖和质感柔化几何形状,而石材则带来重量和深度。哑光和反射表面的结合——玻璃、镜子、抛光金属——增强了空间的复杂性,通过反射和折射光线进行游戏。
楼梯是项目的关键元素之一。它作为一个独立的雕塑物体,嵌入玻璃体积中。其轻盈感不是通过视觉效果实现的,而是通过精确的工程逻辑和形式的极简主义来实现的。楼梯成为连接各层的纽带,同时为整个室内设计赋予了垂直动感。
最重要的阶段是寻找一位艺术家,其作品将成为室内意义和视觉的核心。这不仅仅是选择作者的问题,而是形成空间的DNA——一种与客户个人艺术语言相共鸣,同时又能保持建筑意图完整性的独特艺术语言。安德烈·贝格成为这样的作者:他已经在全球范围内与建筑表面合作了二十多年。在他的项目中,他将景观视为一个充满意义、记忆和联想的空间。
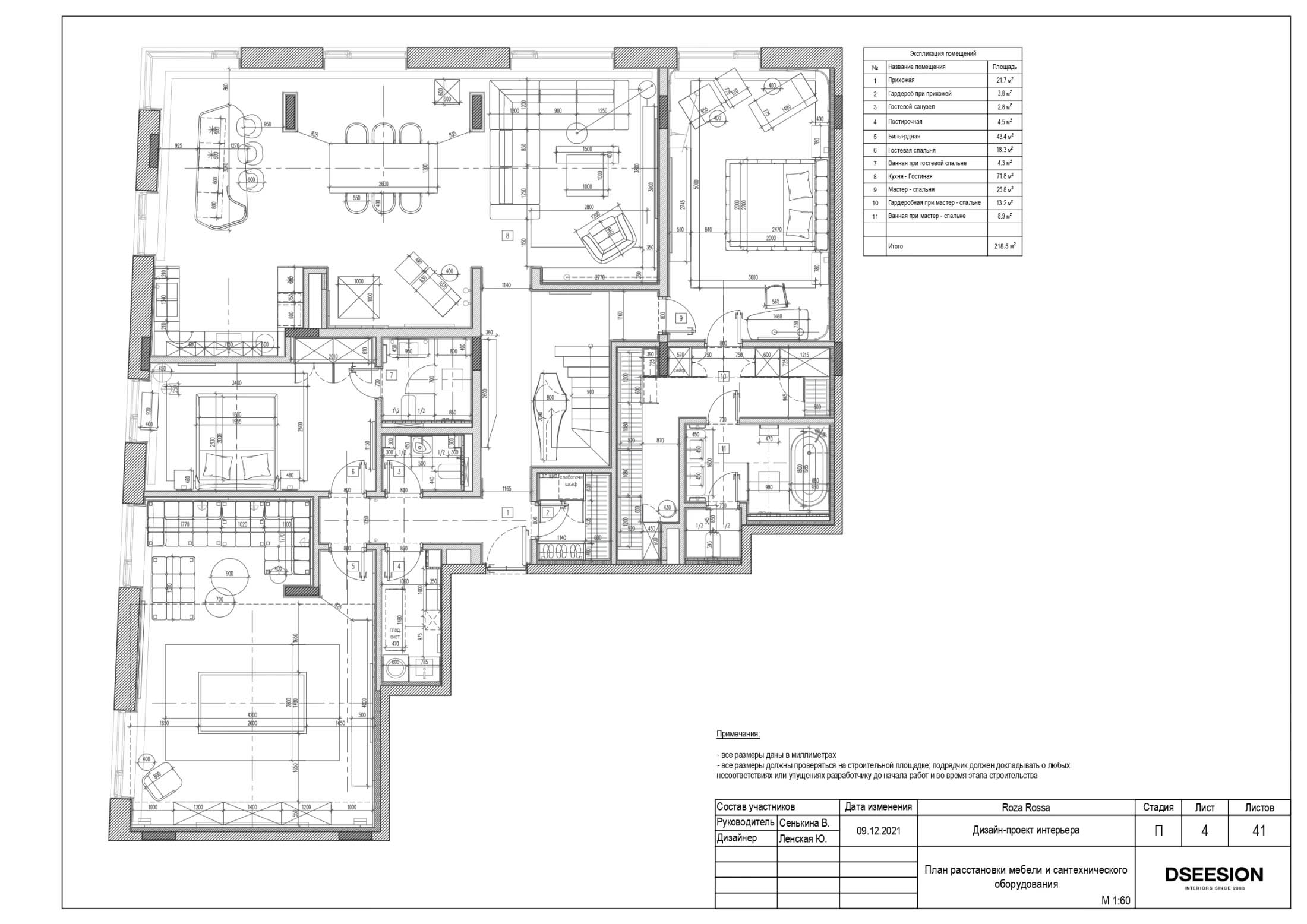
∇ 平面图
高清图库下载
[/rihide]
相关文章推荐





































评论(0)