为父母改造居所,堪称装修界的代际审美碰撞。年轻一代怀揣着改善父母生活品质的热忱,试图将先进智能的设备、新的生活方式与当代生活美学植入旧宅。而父母辈却困于节俭惯性与传统生活模式,在「没必要」与「怕麻烦」的踯躅中筑起藩篱。这场拉锯战往往以两败俱伤收场,直到设计师遇见这个浸润着理解与温情的改造范本。
该项目更像是年轻孩子给退休父母的一份礼物,少有争执,更多的是温暖和关怀。本案的特殊性在于——这是一场由儿媳领头的「孝心改造计划」,尽管平时工作很忙,她还是亲自参与了每一个环节,为了让公婆住得更舒服。
为了用理性和事实说服老人,解决沟通矛盾,他们从制作专业PPT说服长辈,到多次开家庭动员会,再到全程参与设计和施工,年轻一代用行动诠释着:真正的孝顺,是让父母在舒适中拥抱新时代。
设计师仔细研究老人的习惯和家中用品,在120㎡空间编织老人晚年的生活图景,重新建立房子动线和功能,做杂物入墙、轻量化的走廊、更空旷的空间以及合理安排老人书画喝茶等爱好,从而重新定义了这个兼具美观、高效、易用和安全的养老房!
1.传统智慧:保留长辈偏爱的木色与对称美学;
2.现代革新:植入日式LDK体系与智能化适老设施;
3.情感容器:为书画创作、茶道仪式、家族聚会定制专属场域。
最后,这个改头换面的新家,综合两代人的审美和生活,既保留了长辈喜欢的传统稳重,也融入了年轻人带来的现代温润,有传统的书香门第气质,也有现代木质的温柔包容,处处充满了爱和彼此关照的痕迹。沉甸甸的心意,就是这个家最触动人的地方。
设计思路
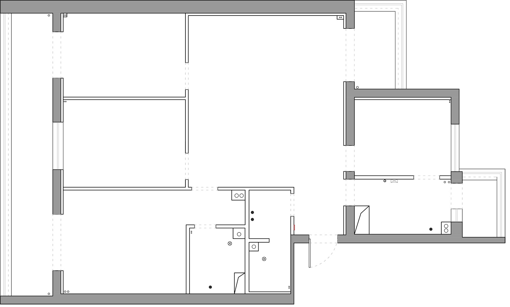
这套120m²老房,平时只有两位老人居住。改造前是三居,虽然房子不小,但是住起来却比较逼仄。首先,南侧三间卧室有两间都是闲置,空间割裂导致采光浪费,平常不开南侧房门,阳光无法抵达客厅,昏暗又显小。原先的餐厅在厨房里面,妈妈平时画画只能在厨房餐桌上进行,每次画画、吃饭都要清理餐桌油污。进门也没有充足的收纳,日常的物品堆积如山,卫生间的使用体验也很差,功能缺失一直严重影响着这家人的生活品质。
∇ 原始结构图
相关文章推荐
















评论(0)