90后年轻业主对于住宅的需求,同步于他们当下的生活追求。无界限的网络社交带来层出不穷的创意需求,“变”,是他们生活的主旋律。设计给到一个“纯净空间”,能由其根据需求随意改造与调整生活方式,则需求得以满足。
少即是多 留白之美
东方的意境之美是“留白”,将遐想留给看客。室内的“留白”带着建筑的理性与严谨,同时追求空间的精简与完美。
在新技术与新材料不断创新的当下,纯净的白色空间历久弥新,无论从色彩或是肌理上,都净化掉了多余的装饰。空间至简的同时,为日后生活的变换增加了更多可能性。
模块布局 流动平面
简化结构体系后,模块化软装的介入,在很大程度优化了其本身“空”的状态,形成可变通的空间体验。
组合沙发从视觉上连接了阅读区、衣帽间、生活阳台、休闲区等功能空间的流通动向,多重组合形式萌发出更多的生活动态。
无界限生活方式
时代的一粒灰,落在个人头上都是一座大山。新时代的居住空间,工作与生活的界限在居家的环境下变得模糊,每个人都在时代的浪潮中,不断变换着生存方式与居住属性,空间的不确定性即是在适应时代的变更。
主诉变换 定义多维
空间从结构中产生,却又不受限与结构,多功能房置于整体空间的中间位置,移门作为可移动的隔墙,将大空间划分为互相联系贯通的小空间,业主可以随意布置,将空间的功能定义多维度延伸。
楼梯如绸带般扭转向上,贯通一二层空间,同时亦是承担着由公区至私密区域情绪转换的功能。色彩方案一路延伸,不做刻意区分,空间形成整体性的感知,于是界限被再次打破。
打破常规 大胆布局
主次空间的功能诉求点被再次合并,重新探讨主卧与卫浴空间的关系,通过玻璃将卧室空间二次打开,形成与干区的互动,浴缸作为独立的个体与睡眠区域相结合。量身定制的设计理念便是探索业主本身的可能性,再做大胆而谨慎的尝试。
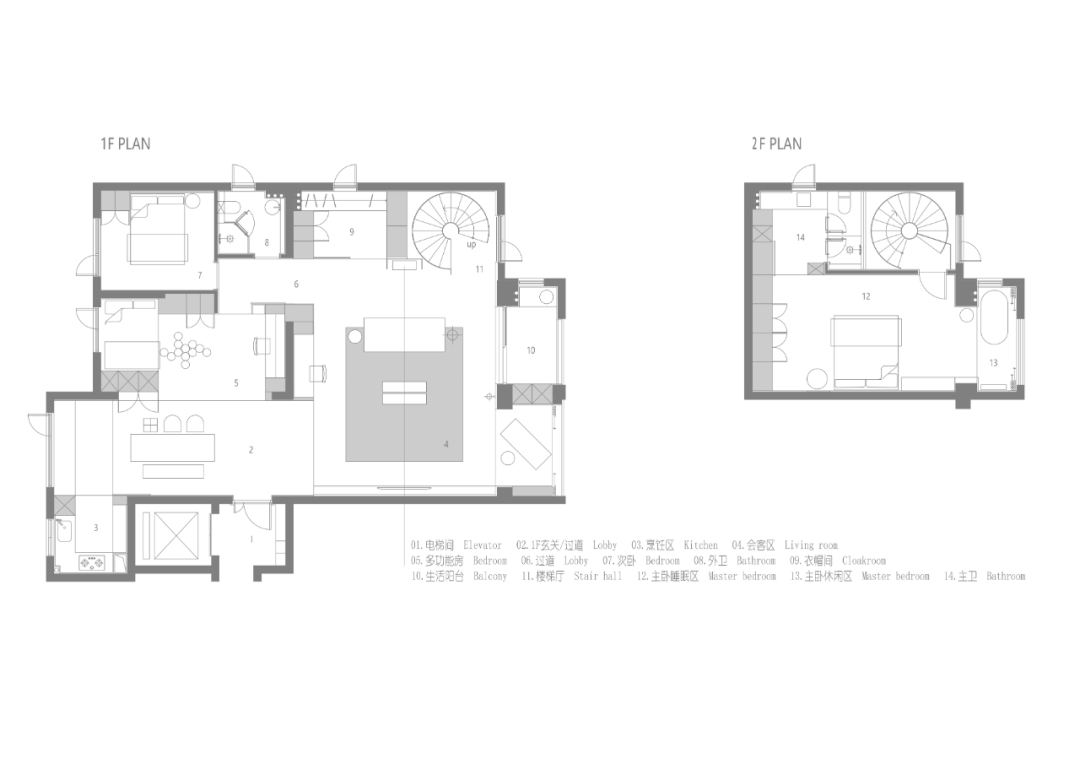
∇ 平面图
项目信息
项目名称|纯净主义
项目地址|中国 浙江 瑞安
设计公司|千上设计
设计主持|姜万静
设计团队|姜万静、蔡丽君、潘琪靖
施工公司|千盛装饰
工程负责|徐崇哲
项目摄影|吴昌乐
建筑面积|174m²
设计时间|2020.4-2020.6
完工时间|2021.9
鸣谢单位|Womehome 今世家国际家居、欧诺(大宅)全屋定制、雅素丽进口瓷砖、HARO德国汉诺地板、鸿联国际卫浴、欧顿照明、伟峰金属制品、丰泽艺术涂料
相关文章推荐




































评论(0)