柏翠姚良度假酒店
PEITREE YAOLIANG RESORTS
项目基地位于浙江省安吉县梅溪镇的姚良村村口,原址为一所已改为民宿的原村小学。据悉,两层的小学校是村民一砖一瓦砌筑而成的,虽然学校早已搬迁,但稻田中的两层小楼却承载着那一代人记忆。小楼旁的文化礼堂与古枫树围合起村口的精神空间。
南面一层的廊子围合成一个四方院子,以前是小朋友的活动场地。站在院子东侧走廊,向西望,越过些杂木的缝隙,可以看到一路之隔的礼堂的山墙面,上面毛主席万岁的印刷字依然清晰可见。礼堂右边挨着满山竹林。礼堂左边是一颗百年古枫树,高高的,沐浴在阳光和风中。这两个场景,成为了最初的设计起点,最终呈现在大堂的远山田园框景,以及南水院。两层楼,西边梯,南边廊,两坡顶。站在二楼的南廊,南面广阔的田地上,田垄层层,顺着坡势,向东延伸到山坡下的小溪,田里有些天然的树丛。再远些,有村落的轮廓;再远些,山脉延绵,层峦叠嶂,形廓壮丽。清风拂面,格外惬意。
∇ 左:基地与村落的关系&右:基地原貌
∇ 改造策略
融于土地,延展村脉
Integrate into earth and extend, the cultural legacy of the village
十亩地,西邻礼堂,东至春溪,约莫四五米的高差。设计顺应地形,延续原小学及礼堂的尺度,由西向东展开,依从地形,自然呈现出贴合大地,水平延绵的感受。南侧一层为公共空间,北侧两层为客房区间,中间院落顺依地形。大堂与餐厅层位于西侧高地,大尺度的泳池的空间通过自然的高差,置于大堂北侧的松园下方,休闲空间向西延展到三面庭院的书吧,巧妙的过渡了自然高差。由此,接待空间与休闲空间在不同高差上向外部敞开,与原有的田园无缝连接。东侧春溪畔,五幢一层两层的独立院落夹着巷道。就此,屋顶尺度从水平长横向转化为村落的丰富与精巧。
∇ 顺应地形的设计
院落起合,依境借景
The changes of courtyards, and borrowing scenery from the environment
多层次院落的串联起空间的起承转合,巧妙借景又令空间与周遭的景境交流对话。空间东起于南水院,承于大堂北松园,转于书吧樱苑,合于别院巷道的端部的月洞门。北望的月洞门框住了近处的一山丘,山丘上庙宇的歇山顶在竹林上,阳光下熠熠生光。大堂内的木盒框住田园与远山。南水院,以水为媒,以院为框,四周的景致倒映水中,又依四时摇曳变化。
南水院在进大堂左侧,大堂中轴对应礼堂山墙,两石墙界定一暗框,透过门可以看到水面的微波以及山墙独特的轮廓。走出门洞,方形水院呈现出礼堂山墙及古枫树的倒影,两侧的廊柱立于水中,虚实相应,远山飘渺。
诗意栖居,承载美好
Poetic dwelling, bearing memorable times
设计将酒店用地置于稻田之中,令居者为稻田所环抱,远山、竹海、松林、梅溪、稻田,四季之间,俯仰皆景,构成一派纯粹的田园风光;将自然景观融入建筑,回归田园的空间环境,为客人提供现代时尚的休闲居所,营造一处令居者享有四时山水田园,并拥有现代、时尚、高端、舒适的精致居所,打造以度假为主题的精品高端酒店。
∇ 总平面图
∇ 一层平面图
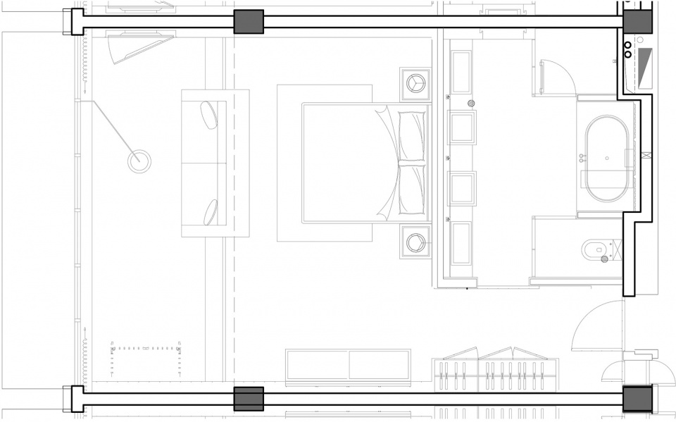
∇ 客房平面图 A
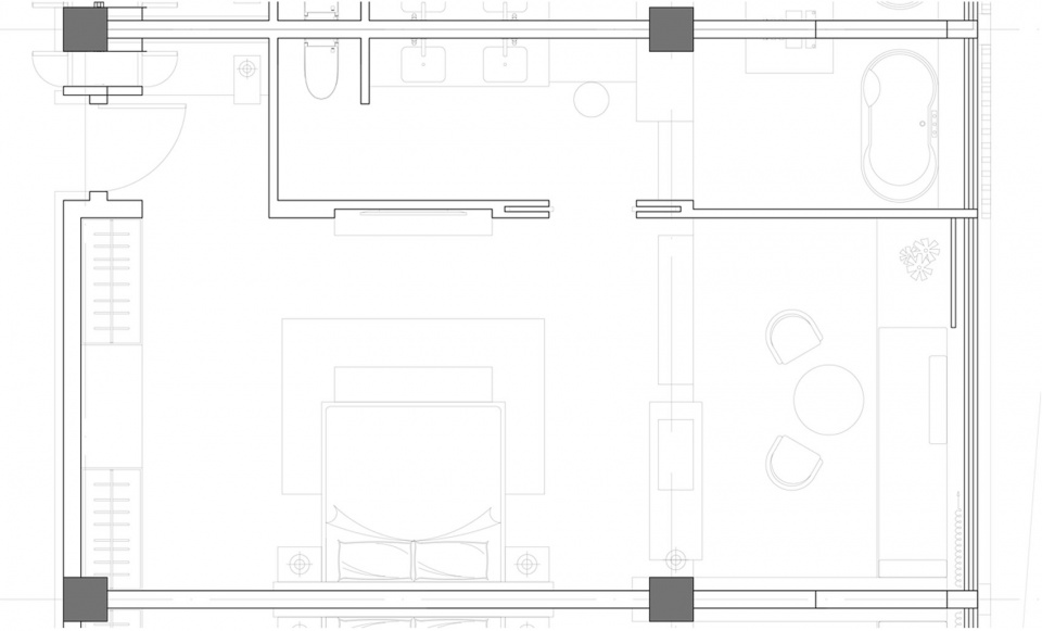
∇ 客房平面图 B
项目信息
项目名称:安吉柏翠姚良度假酒店
设计方:上海秉仁建筑师事务所(普通合伙)+上海彼印建筑设计咨询有限公司
项目设计 & 完成年份:2016-2020年
主创建筑师:蔡沪军
设计团队:刘俊亚、马连雯、庄闻昊
项目地址:浙江省湖州市
建筑面积:7,679.9 m²
摄影版权:吕晓斌、空间摄影杨耿亮、Being Studio、周利
施工图单位:上海都市建筑设计有限公司
室内设计:喜玛拉雅设计装修有限公司
客户:安吉柏翠度假酒店有限公司
相关文章推荐



































评论(0)